Z641H气动闸阀
Z641H气动闸阀广泛适用于石油、化工、水力、火力发电厂等油品、水蒸气管路上作接通或截断管路中介质的启闭装置。适用于公称压力PN1.6~16.0MPa,工作温度≤-29℃~550℃的管路系统上,作为切断或接通管路介质。适用介质为:水、油品、蒸气、及酸、碱、氨、尿素、含硫天然气等。
|
产品名称: |
气动闸阀 |
产品型号: |
Z641H |
|
公称通径: |
DN15~DN1000 |
结构形式: |
闸板式 |
|
公称压力: |
1.6Mpa~6.4Mpa |
连接方式: |
法兰 |
|
适用温度: |
-20ºC~+150ºC~425ºC~550ºC |
驱动方式: |
气动带手动 |
|
阀体材质: |
WCB、铸钢、碳钢、不锈钢、铬钼钢 |
制造标准: |
国标GB、德国DIN、美国API、ANSI |
|
适用介质: |
水、油、蒸汽 |
生产厂家: |
UWIN电竞(中国)集团, |
产品说明
Z641H气动闸阀广泛适用于石油、化工、水力、火力发电厂等油品、水蒸气管路上作接通或截断管路中介质的启闭装置。适用于公称压力PN1.6~16.0MPa,工作温度≤-29℃~550℃的管路系统上,作为切断或接通管路介质。适用介质为:水、油品、蒸气、及酸、碱、氨、尿素、含硫天然气等。
产品特点
1、结构紧凑、设计合理、阀门刚性好、通道流畅,流量系数小
2、密封面采用不锈钢和硬质合金,使用寿命长
3、采用柔性石墨填料、密封可靠,操作轻便灵活
4、驱动方式为手动、气动、电动、齿轮传动
5、结构形式为弹性楔式单闸板、刚性楔式单闸板双闸板型式
产品介绍
Z641H气动闸阀是具有气动执行机构(双层气缸,并带有缓冲机构)和手动及其保护机构(手动和可自锁的气动-手动转换装置)的低支架明杆气动闸阀。该阀由于采用双层气缸结构,其与单气缸式气动闸阀相比,提升力增大了一倍。这就从根本上解决了单气缸气动闸阀的某些阀体内楔死而打不开的弊病。而且,由于气动闸阀具备缓冲机构,能有效地减速轻了关闭气动阀门时,由于活塞下行冲击而造成的阀板车密封面和阀体密封面的磨损,同时,也能避免闸板卡死的现象。为了配合用户实现操作自动化,本公司除供应本系列产品之外,还可单独提供包括支架在内的气缸体,帮助用户对已有的种类繁多的手动闸阀进行改造,将双缸气动执行机构部分安装在手动闸阀的阀体大盖上,即可构成双缸式气动-手动两用闸阀。由于其技术先进,性能可靠,操作切换和维修方便,已被石油、化工、冶金、电力、海运等部门作为输送气体、液体介质的管道开闭装置而广泛使用。
主要零件材料
|
阀体、阀盖、阀板 |
铸钢 |
|
阀体及闸板的密封面 |
合金钢 |
|
阀杆 |
不锈钢 |
|
双头螺栓 |
35号钢 |
|
气缸 |
20号无缝钢管 |
|
活塞 |
铸铝合金 |
|
手动螺母 |
青铜 |
|
密封圈 |
石棉橡胶板、缠绕式金属石墨垫片 |
|
活塞环及轴环 |
耐油橡胶○型圈 |
|
填料函 |
石墨石棉绳 |
主要性能参数
|
型号 |
公称压力PN(MPa) |
阀体试验压力 PN(MPa) |
|
|
|
|
强度试验 |
密封试验 |
|
|
Z641H-10 |
1.6 |
2.4 |
1.6 |
|
|
Z641H-25 |
2.5 |
3.8 |
2.5 |
|
|
Z641H-40 |
4.0 |
6.0 |
4.0 |
|
|
Z641H-64 |
6.4 |
9.6 |
6.4 |
|
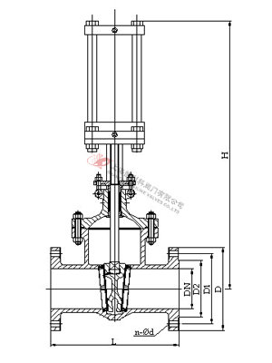
外形结构图
主要外形和连接尺寸
|
公称通径 DN |
L |
D |
D1 |
D2 |
b |
Z-Φd |
H |
H1 |
D0 |
WT(Kg) |
|
型号:Z641H-16C、Z641H-16P、Z641H-16R、Z641H-16I |
|
50 |
250 |
160 |
125 |
100 |
16 |
4-Φ18 |
950 |
570 |
180 |
36 |
|
65 |
270 |
180 |
145 |
120 |
18 |
4-Φ18 |
1050 |
596 |
180 |
53 |
|
80 |
280 |
195 |
160 |
135 |
20 |
8-Φ18 |
1080 |
635 |
200 |
72 |
|
100 |
300 |
215 |
180 |
155 |
20 |
8-Φ18 |
1145 |
645 |
250 |
90 |
|
125 |
325 |
245 |
210 |
185 |
22 |
8-Φ18 |
1210 |
685 |
250 |
120 |
|
150 |
350 |
280 |
240 |
210 |
24 |
8-Φ18 |
1300 |
720 |
320 |
132 |
|
200 |
400 |
335 |
295 |
265 |
26 |
12-Φ23 |
1660 |
940 |
400 |
258 |
|
250 |
450 |
405 |
355 |
320 |
30 |
12-Φ25 |
1790 |
1020 |
400 |
297 |
|
300 |
500 |
460 |
410 |
375 |
30 |
12-Φ25 |
1990 |
1150 |
450 |
420 |
|
350 |
550 |
520 |
470 |
435 |
34 |
16-Φ25 |
2090 |
1170 |
450 |
558 |
|
400 |
600 |
580 |
525 |
485 |
36 |
16-Φ30 |
2290 |
1325 |
500 |
840 |
|
450 |
650 |
640 |
585 |
545 |
40 |
20-Φ30 |
2485 |
1465 |
500 |
1110 |
|
500 |
700 |
705 |
650 |
608 |
44 |
20-Φ34 |
2640 |
1590 |
550 |
1380 |
|
600 |
800 |
840 |
770 |
718 |
48 |
20-Φ41 |
2940 |
1720 |
550 |
1620 |
|
700 |
900 |
910 |
840 |
788 |
50 |
24-Φ41 |
3450 |
1960 |
600 |
1966 |
|
800 |
1000 |
1020 |
950 |
898 |
52 |
24-Φ41 |
3650 |
2190 |
600 |
2282 |
|
900 |
1100 |
1120 |
1050 |
998 |
54 |
28-Φ41 |
3815 |
2400 |
800 |
2495 |
|
1000 |
1200 |
1255 |
1170 |
1110 |
56 |
28-Φ48 |
4000 |
2650 |
800 |
2760 |
主要外形和连接尺寸
公称通径
DN |
L |
D |
D1 |
D2 |
b |
Z-Φd |
H |
H1 |
D0 |
WT
(Kg) |
|
型号:Z641H-25C、Z641H-25P、Z641H-25R、Z641H-25I |
|
50 |
250 |
160 |
125 |
100 |
20 |
4-Φ18 |
950 |
570 |
180 |
38 |
|
65 |
270 |
180 |
145 |
120 |
22 |
8-Φ18 |
1050 |
596 |
180 |
55 |
|
80 |
280 |
195 |
160 |
135 |
22 |
8-Φ18 |
1080 |
635 |
200 |
76 |
|
100 |
300 |
230 |
190 |
160 |
24 |
8-Φ23 |
1145 |
645 |
250 |
94 |
|
125 |
325 |
270 |
220 |
188 |
28 |
8-Φ25 |
1210 |
685 |
250 |
126 |
|
150 |
350 |
300 |
250 |
218 |
30 |
8-Φ25 |
1300 |
720 |
320 |
136 |
|
200 |
400 |
360 |
320 |
278 |
34 |
12-Φ25 |
1660 |
940 |
400 |
265 |
|
250 |
450 |
425 |
370 |
332 |
36 |
12-Φ30 |
1790 |
1020 |
400 |
300 |
|
300 |
500 |
485 |
430 |
390 |
50 |
16-Φ30 |
1990 |
1150 |
450 |
436 |
|
350 |
550 |
550 |
490 |
448 |
44 |
16-Φ34 |
2090 |
1170 |
450 |
580 |
|
400 |
600 |
610 |
550 |
505 |
48 |
16-Φ34 |
2290 |
1325 |
500 |
860 |
|
450 |
650 |
660 |
600 |
555 |
50 |
20-Φ34 |
2485 |
1465 |
500 |
1260 |
|
500 |
700 |
730 |
660 |
610 |
52 |
20-Φ41 |
2640 |
1590 |
550 |
1420 |
|
600 |
800 |
840 |
770 |
718 |
56 |
20-Φ41 |
3940 |
1720 |
550 |
1710 |
|
700 |
900 |
955 |
875 |
815 |
60 |
24-Φ48 |
3450 |
1960 |
600 |
2105 |
|
800 |
1000 |
1070 |
990 |
930 |
64 |
24-Φ48 |
3650 |
2190 |
600 |
2310 |
|
900 |
1100 |
1180 |
1090 |
1025 |
66 |
28-Φ54 |
3815 |
2400 |
800 |
2620 |
|
1000 |
1200 |
1305 |
1210 |
1140 |
68 |
28-Φ58 |
4000 |
2650 |
800 |
2960 |
主要外形和连接尺寸
公称通径
DN |
L |
D |
D1 |
D2 |
D6 |
b |
Z-Φd |
H |
H1 |
D0 |
WT
(Kg) |
|
型号:Z641H-40C、Z641H-40P、Z641H-40R、Z641H-40I |
|
50 |
250 |
160 |
125 |
100 |
88 |
20 |
4-Φ18 |
950 |
570 |
200 |
42 |
|
65 |
280 |
180 |
145 |
120 |
110 |
22 |
8-Φ18 |
1050 |
596 |
200 |
68 |
|
80 |
320 |
195 |
160 |
135 |
121 |
22 |
8-Φ18 |
1080 |
635 |
250 |
84 |
|
100 |
350 |
230 |
190 |
160 |
150 |
24 |
8-Φ23 |
1145 |
645 |
320 |
102 |
|
125 |
400 |
270 |
220 |
188 |
176 |
28 |
8-Φ25 |
1210 |
700 |
320 |
135 |
|
150 |
450 |
300 |
250 |
218 |
204 |
30 |
8-Φ25 |
1330 |
750 |
400 |
156 |
|
200 |
550 |
375 |
320 |
282 |
260 |
38 |
12-Φ30 |
1660 |
940 |
400 |
276 |
|
250 |
650 |
445 |
385 |
345 |
313 |
42 |
12-Φ34 |
1820 |
1050 |
450 |
306 |
|
300 |
750 |
510 |
450 |
408 |
364 |
46 |
16-Φ34 |
1990 |
1150 |
450 |
510 |
|
350 |
850 |
570 |
510 |
465 |
422 |
52 |
16-Φ34 |
2110 |
1190 |
500 |
720 |
|
400 |
950 |
655 |
585 |
535 |
474 |
58 |
16-Φ41 |
2335 |
1370 |
550 |
1050 |
|
450 |
1050 |
680 |
610 |
560 |
524 |
60 |
20-Φ41 |
2490 |
1510 |
550 |
1320 |
|
500 |
1150 |
755 |
6720 |
612 |
576 |
62 |
20-Φ48 |
2640 |
1590 |
550 |
1800 |
|
600 |
1350 |
890 |
795 |
730 |
678 |
62 |
20-Φ54 |
2940 |
1720 |
600 |
2160 |
使用说明
1、本阀主要由阀体、阀盖、闸板、阀杆、密封圈、双层气缸及其活塞、活塞杆、隔板连同缓冲机构、手动机构、气动-手动转换装置和阀盖填料装置等部分组成。
2、上活塞行至行程上端可顶上上回讯器,使之发讯;下活塞行之行程下端可顶下下回讯器,使之发讯,以作为闸阀开闭信息在中央操作室的模拟仪表盘上进行显示。
3、手轮上部的外伸指示杆的上升和下降,标志着该阀的闸板是处于提升状态还是下降状态。闸阀关闭时,外伸指示杆位于最低位置;反之,闸阀全开时,外伸指示杆位于最高位置。此即为本阀启闭状态的现场指示。
4、气缸盖上部装有气动-手动转换装置。将转换手柄顺时针方向提转到“气动”定位孔定位,闸阀处于气动操作状态;反之,将转换手柄逆时针方向提转到“手动”定于孔处定位,闸阀即可进行手动操作。带锥齿轮的手柄转换方向相反。 手动操作闸阀时,手轮旋向和普通手动阀一样,即顺时针转为关,逆时针转为开。带锥齿轮转动的相反。
注意事项
1、手轮、手柄及传动机构均不允许作起吊用,并严禁碰撞。
2、双闸板闸阀应垂直安装(即阀杆处于垂直位置 , 手轮在顶部 )。
3、带有旁通阀的闸阀在开启前应先打开旁通阀(以平衡进出口的压差及减小开启力 )。
4、带传动机构的闸阀,按产品使用说明书的规定安装。
5、如果阀门经常开关使用 , 每月至少润滑一次。
声明:【Z641H气动闸阀】规格型号、结构尺寸由UWIN电竞(中国)集团,提供,如何选择适用的Z641H气动闸阀产品,使之在工艺控制中安全可靠、经济适用,可致电我司销售部门及技术部门,我们将在最短的时间内为您解答! |